守山市勝部1丁目の店舗事務所

28.6万円 (1.42万円~1.43万円/坪) 管理/共益費 0円

滋賀県守山市勝部1丁目16-1

東海道本線「守山」駅徒歩3分

価格
28.6万円(1.42万円~1.43万円/坪) 管理/共益費 0円
面積
20.06坪~25.48坪(66.32㎡~84.24㎡)
所在地
滋賀県守山市勝部1丁目16-1
築年
2025年3月(予定)
駐車
-
交通

東海道本線守山」駅 徒歩3分

守山市勝部1丁目の店舗事務所の基本情報

物件名
守山市勝部1丁目の店舗事務所
価格
28.6万円(1.42万円~1.43万円/坪)
管理/共益費
0円
築年月
2025年3月(予定)
所在地
滋賀県守山市勝部1丁目16-1
交通

東海道本線守山」駅 徒歩3分

守山市勝部1丁目の店舗事務所の詳細情報

設備条件
駐車場/月額
-/ 共用のみ
用途地域
商業
取引態様
仲介
備考
駅まで歩いてアクセスできる、徒歩3分の距離に立地する物件です。

守山市勝部1丁目の店舗事務所のコメント(おすすめポイント)

徒歩3分で駅にアクセス可能な、魅力的な駅近物件です。

守山市勝部1丁目の店舗事務所で募集中の物件

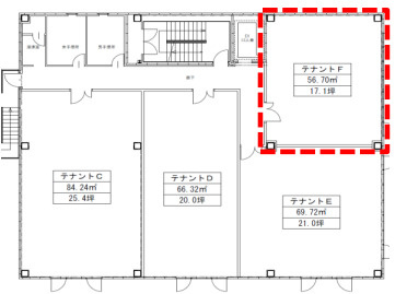
  1. 2階D

    20.06坪 (66.32㎡)

    28.6万円(1.43万円/坪)

  2. 2階E

    21.09坪 (69.72㎡)

    30.03万円(1.42万円/坪)

  3. 2階C

    25.48坪 (84.24㎡)

    36.33万円(1.43万円/坪)

近隣の物件

  1. 守山市守山1丁目

    - (176.10㎡)

    38.5万円(0.72万円/坪)

  2. 守山市水保町

    - (43.50㎡)

    8.8万円(0.67万円/坪)

  3. 守山市勝部5丁目

    - (61.93㎡)

    11万円(0.59万円/坪)

  4. 守山市勝部1丁目

    - (64.84㎡)

    16.5万円(0.84万円/坪)

よく見られている物件

  1. 大津市南郷2丁目

    - (13.91㎡)

    3.24万円

  2. 野洲市小篠原

    - (27.00㎡)

    6.6万円

  3. 草津市若竹町

    - (64.39㎡)

    6.6万円

  4. 近江八幡市市井町

    - (30.00㎡)

    7.7万円

守山市勝部1丁目の店舗事務所

お気軽にお問い合わせください

無料お問い合わせ

株式会社UNO

077-518-0515

9:00~18:00

(休:-)